Marilee & Andrew Kitchen Remodel Project
 

Current Kitchen | The Process

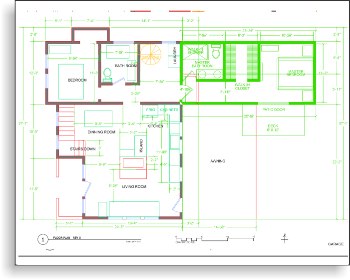
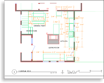
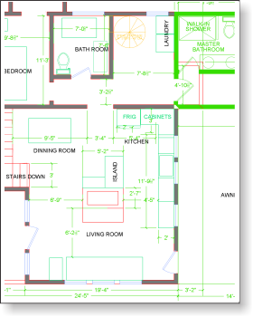
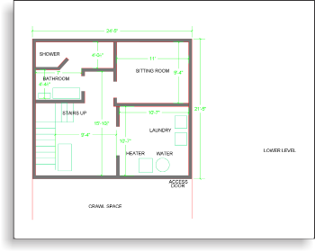
Floor Plans

Ikea Kitchen Planner | Items to be resolved

     

 

Home Depot

 

Microwave Ovens

Summary of styles and types

Examples of products (from 2017)

   
Sink examples
   

SketchUp Program

Pictures from SketchUp Model

   
Pictures of current kitchen
   
Accounts  
   

Resources

 

Ikea Kitchen

Home Depot Kitchen

Kitchen Helpers

Kokeena Custom Ikea Fronts

Door/Drawer front manufacturer

Door/Drawer front manufacturer

Door/Drawer front manufacturer

Door/Drawer front manufacturer

Door/Drawer front manufacturer

Door/Drawer front manufacturer

Door/Drawer front manufacturer

 

Spiral staircase manufacturer

 

 


Background information - Van Water Kitchen Remodel - More Pictures Here

Project Description (Sent to full package contractors for estimates)

Price estimates received from full-project contractors

Cabinets

Countertops

Microwave Ovens (2017 data)

Planning Documents and Drawings

Floors - Price estimates received from floor contractors

Final Actual Expenses

Pictures